About MLS® E4466218
Brokerage Name:
Royal LePage Noralta Real Estate
Agent Name:
Tyson V Moroz
This exquisite Linwood Custom Home marries award-winning post-and-beam craftsmanship with soaring vaulted ceilings and luxurious open-concept design, delivering a timeless, energy-efficient waterfront masterpiece on this rare lakefront estate. Nestled on a ¼-acre lakefront lot with private access to nearly double that in protected shoreline reserve, this gently sloped, fully usable yard is framed by towering mature trees—offering unparalleled privacy and serene waterfront living. Built in 2023 with dramatic timber accents, a stunning two-sided river rock fireplace, enclosed three-season room, and a gourmet kitchen featuring crisp white shaker cabinetry, quartz counters, professional appliances, and a walk-in pantry with dedicated coffee bar. Luxurious main-floor primary suite, spacious guest rooms above, and a walkout lower level opening onto your covered patio and private walkway to the barrel sauna. A like-new lake estate, move-in ready, with the remainder of the Progressive New Home Warranty.
Key Details
| MLS® # | E4466218 |
|---|
| Price | $1,790,000 |
|---|
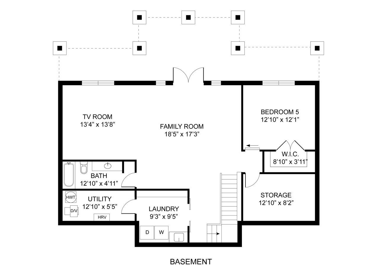
| Bedrooms | 5 |
|---|
| Bathrooms | 3.5 |
|---|
| Square Footage | 2411.14 |
|---|
| Property Type | Residential |
|---|
| Subtype | Detached Single Family |
|---|
| Year Built | 2023 |
|---|
| Zoning | Zone 93 |
|---|
| Ownership | Private |
Location Information
| Address | #48 52518 RGE ROAD 52 |
|---|
| Community | Rosewood Beach |
|---|
| City | Rural Parkland County |
|---|
| Province | AB |
|---|
| Postal Code | T0E 2B0 |
Features & Amenities
- Backs Onto Park/Trees
- Beach Access
- Boating
- Lake Access Property
- Lake View
- Landscaped
- No Through Road
- Recreation Use
- Waterfront Property
- Forced Air-1
- Natural Gas
- Concrete Perimeter
Map Location